close
如果是老屋的話,必定會有拆除這個工程,要如何施工,如何維持堅固也是很重要的課題。
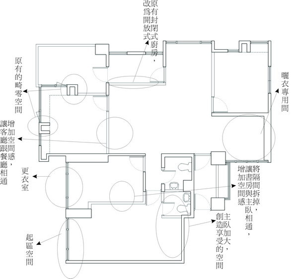
1.將主浴加大,使用部份主臥空間。
2.原本封閉式廚房改成開放式廚房。
3.原本的小孩房拆掉作為客廳的空間。
4.書房與主臥相通。

原本的小孩房拆掉作為客廳空間。
電視牆部份,後面即是露台。
將原本的小主浴拆掉,加大空間。
設計圖要考慮他的結構牆、大樑是不能拆的,通常是拆一般的隔間牆,像是減力牆千萬不能拆,每間房子都會有一個管道間,他有可能在地下,也有可能在牆里,裡面有許多的管線,如果不小心拆到了,將會是一件很麻煩的事喔!!
這就是大樑!!
全站熱搜
留言列表